Aktueller Bautenstand bei einem unserer Modernisierungsprojekte im Raum Weilmünster/Limburg…

Abkleben der Fenster Auftragen von Grundierung Auftragen des Oberputzes Verreiben des Oberputzes Aussparung im Putz für einen dekorativeren Putz herstellen Bitumenbelag am Eingang des Gebäudes mechanisch entfernt Schleifen des Bodens und der Randkante mit einem Diamantschleifer Boden mit Epoxidharz grundiert und abgesandet Hohlkehle hergestellt
Aktueller Bautenstand bei dem Neubau eines Garagenkomplexes im Kreis Bergstraße…

Bodenaufbau mit Schotter Abschieben des Splitts Verlegung der Pflastersteine im Wildverband Abdichten der Sockel mit Flüssigkunstoff Verputzen der Wände mit Zementputz
Aktueller Bautenstand des Neubaus einer Fahrzeug-Halle mit Garagen und einer Waschstation in Weinheim…

Anschluss der Entwässerung an die Regenwasserzisterne Stellen der Trockenbauprofile zur Unterteilung der Garagen Beidseitige Beplankung der Trockenbauprofile in den Garagen Stellen der Trockenbauprofile zur Abteilung des Bades Einseitige Beplankung der Trockenbauprofile in der Fahrzeug-Halle Planum herstellen Abschieben des Splitts Verlegung der Pflastersteine im Wildverband
Baubeginn bei dem zweiten Bauabschnitt der Modernisierung eines Bürokomplexes im Raum Darmstadt…

Baustelleneinrichtung Rückbau sämtlicher Bodenfliesen und Teppichbodenbeläge Entfernung von sämtlichen Tapeten und Wandfliesen Ausbau der Unterdecken Abbruch sämtlicher Innenwände und Trockenbauwände zur Öffnung des Raumes für die zukünftige Nutzung als „Open- Space“- Büro Rückbau der WC-Anlagen und Waschtische Ausbau der Küchenzeile Positionierung neuer Trockenbau-Ständerwerke Einseitige Beplankung der Trockenbauprofile als Vorbereitung für die Elektroinstallation in den Trockenbauwänden
Aktueller Bautenstand bei der Modernisierung und dem Umbau einer 600 qm großen Finca auf Ibiza…

Baubesprechungen mit allen Firmeninhabern der in den Bau involvierten örtlichen Handwerksbetriebe, Durchsprache und Kontrolle der Restarbeiten und des Bauzeitenplans End-Kontrolle und Abnahme der fertiggestellten Gewerke Einbau weiterer Sanitärobjekte in den Bädern Endmontage von Schaltern und Steckdosen sowie der Thermostate der Fußbodenheizung Verputz- und Malerarbeiten in allen Innen- und Außenbereichen Einbau und Abnahme der außenliegenden Klappläden […]
Heizen mit Wärmepumpen: Planung, Kosten, Förderung- das sollten Eigentümer vor dem Einbau wissen…

Viele Hausbesitzer in Deutschland wollen ihre Heizung auf Wärmepumpen umstellen- doch dabei stellen sich viele Fragen: Welches Gerät ist das richtige? Welche Heizung passt zu einer Wärmepumpe? Wieviel kostet der Umbau der Heizung auf eine Wärmepumpe? Wie hoch ist der Stromverbrauch der Wärmepumpe? Welche aktuellen Förderprogramme gibt es für die Umstellung der Heizung auf eine […]
Energetische Sanierung- Planung der energetischen Sanierung, Beantragen der Fördermittel, Realisierung

Energieverbrauch senken, Umwelt entlasten, Kosten sparen: Die erfahrenen Architekten und Innenarchitekten, Bauingenieure und Energieberater von raum in form- Innenarchitektur & Architektur beraten Sie gerne, welche Vorteile eine energetische Sanierung hat, was sie kostet und wie die Sanierung gefördert wird. Was ist eine energetische Sanierung? Als „energetische Sanierung“ werden bauliche Änderungen an einem Gebäude bezeichnet, die […]
„raum in form- Innenarchitektur & Architektur“ auf der ISH 2023- der Weltleitmesse für Wasser, Wärme und Luft…

Die ISH 2023, die in diesem Jahr nach coronabedingter Pause ein eindrucksvolles Comeback feierte, stand in diesem Jahr unter dem Motto „Lösungen für eine nachhaltige Zukunft“. Fünf Tage lang drehte sich auf der Weltleitmesse für Wasser, Wärme und Luft alles um Innovationen, die einen verantwortungsvollen sowie effizienten Umgang mit den verfügbaren Ressourcen ermöglichen. Die ISH […]
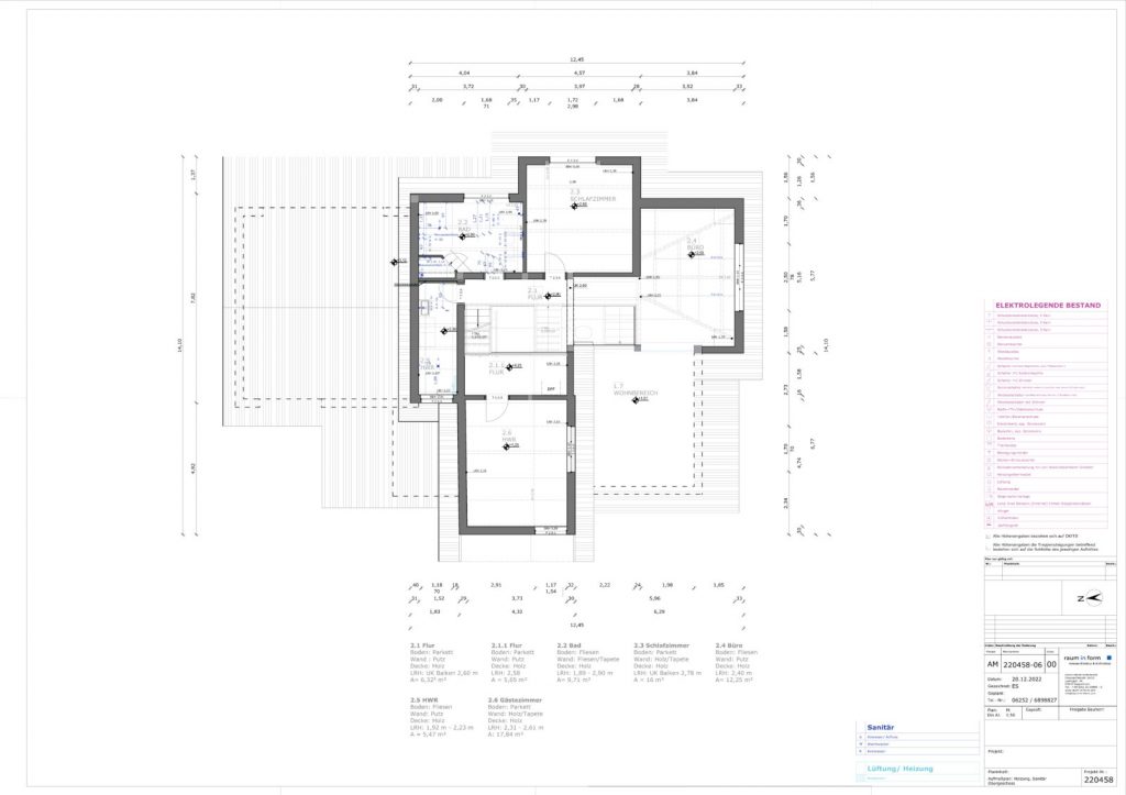
Fertigstellung der Konzeptplanungen für die Neukonzeptionierung und energetische Sanierung eines Einfamilienhauses im Raum Bad Soden- Salmünster…

Nachdem „raum in form– Innenarchitektur & Architektur“Ende November 2022 mit der Grundlagenerarbeitung, den Konzeptplanungen, der Ausarbeitung von Material-, Produkt- und Farbvorschlägen sowie mit der Kostenschätzung für die Modernisierungsmaßnahmen beauftragt wurde, begann das Projektteam wenige Tage nach der Auftragserteilung mit dem örtlichen Aufmaß. In einem ausführlichen Konzept- Brainstorming und unter Berücksichtigung der von den Bauherren definierten […]
Aktueller Bautenstand des Neubaus einer exklusiven Villa im Raum Frankfurt…

Vorbereiten der Elektroinstallationen Kernbohrungen für die Elektroinstallationen Verlegung der Sanitärinstallationen Einbau der Unterkonstruktionen für die abgehängten Decken Abdichten der Dachkonstruktion Installation der Unterputz-Batterien für die Wand- und Duscharmaturen Installation der WC-Vorwandelemente Installation der Lüftungsschläuche für die kontrollierte Wohnraumlüftung