Fertigstellung der Konzeptplanungen für die Neukonzeptionierung und den Umbau eines Zweifamilienhauses in Karlsruhe in ein Mehrfamilienhaus mit 4 exklusiven Wohnungen…

Nachdem „raum in form– Innenarchitektur & Architektur“ im Mai dieses Jahres mit der Grundlagenerarbeitung, den Konzeptplanungen sowie mit der Kostenschätzung für die Neukonzeptionierung und den Umbau eines Zweifamilienhauses in Karlsruhe in ein Mehrfamilienhaus mit 4 exklusiven Wohnungen beauftragt wurde, begann das Projektteam wenige Tage nach der Auftragserteilung zunächst mit dem örtlichen Aufmaß. In einem ausführlichen […]
Aktueller Bautenstand der Heizungs- und Sanitärinstallationen für den Neubau von 8 Reihenhäusern und 4 Doppelhaushälften in Endingen am Kaiserstuhl…

Anschluss der Fußbodenheizungsverteiler Montage der Kältemittelleitung Transport der neuen Wärmepumpen auf die Dächer Aufheizprogramme für Haus 1-4 Verlegung der Leitungen für die Handtuchheizkörper Verlegung der Fußbodenheizung
Fertigstellung der Konzeptplanungen und der Kostenschätzung für den Umbau und die Sanierung einer Eigentumswohnung in Santa Eulària des Riu auf Ibiza …

Infolge der Beauftragung von „raum in form– Innenarchitektur & Architektur“ Ende April 2023 mit der Grundlagenerarbeitung, den Konzeptplanungen und der Kostenschätzung für die Baukosten für die Sanierung der Eigentumswohnung, wurde direkt nach der Auftragserteilung erste Konzeptskizzen erarbeitet. Das dafür notwendige Aufmaß konnte aufgrund der ständigen Präsenz vor Ort auf Ibiza bereits kurz nach der Auftragserteilung […]
Fertigstellung der Konzeptplanungen für die Neukonzeptionierung und den Dachgeschossausbau eines Zweifamilienhauses im Odenwald…

Nachdem „raum in form– Innenarchitektur & Architektur“ mit der Grundlagenerarbeitung, den Konzeptplanungen, der Ausarbeitung von Material-, Produkt- und Farbvorschlägen sowie mit der Kostenschätzung für die Modernisierungsmaßnahmen beauftragt wurde, begann das Projektteam wenige Tage nach der Auftragserteilung mit dem örtlichen Aufmaß. In einem ausführlichen Konzept- Brainstorming und unter Berücksichtigung der von den Bauherren definierten Wünsche und […]
Fertigstellung der Konzeptplanungen und der Ausstattungsplanung für die Modernisierung und Aufstockung eines Einfamilienhauses im Kreis Bergstraße…

Nachdem „raum in form– Innenarchitektur & Architektur“ im Mai 2023 mit der Grundlagenerarbeitung, den Konzept- und Ausstattungsplanungen sowie mit der Grobkostenschätzung für die Modernisierungs- und Aufstockungsmaßnahmen eines Einfamilienhauses im Kreis Bergstraße beauftragt wurde, begann das Projektteam wenige Tage nach der Auftragserteilung mit dem örtlichen Aufmaß. In einem ausführlichen Konzept- Brainstorming mit den Bauherren und unter […]
Fertigstellung der Konzeptplanungen und Baubeginn bei der Modernisierung einer Eigentumswohnung im Raum Frankfurt….

Nachdem raum in form- Innenarchitektur & Architektur im Juni dieses Jahres mit den Konzept- und Ausführungsplanungen für die Modernisierung einer Eigentumswohnung im Raum Frankfurt beauftragt wurde, wurden innerhalb von nur vier Wochen die Konzept- und Ausführungsplanungen fertiggestellt. Unmittelbar nach Besprechung und Freigabe der Konzept- und Ausführungsplanungen wurde die raum in form- Bau- und Sanierungsgesellschaft mit […]
Dornbracht, ein exklusiver Lieferant für Bad-, Küchen-, und Spa-Produkte, zu Besuch bei raum in form – Objekteinrichtungen…

Einer unserer langjährigen Lieferanten im Bereich Bad-, Küche und Spaprodukten war wieder in unserem Stammsitz in Heppenheim zu Besuch und stellte ausführlich die Neuheiten seiner Kollektionen CYO und MADISON vor. Die Armaturen von Dornbracht haben sich einen Namen gemacht, indem sie Originalität und Persönlichkeit zum Ausdruck bringen. Jedes Produkt ist einzigartig in seinem Charakter und […]
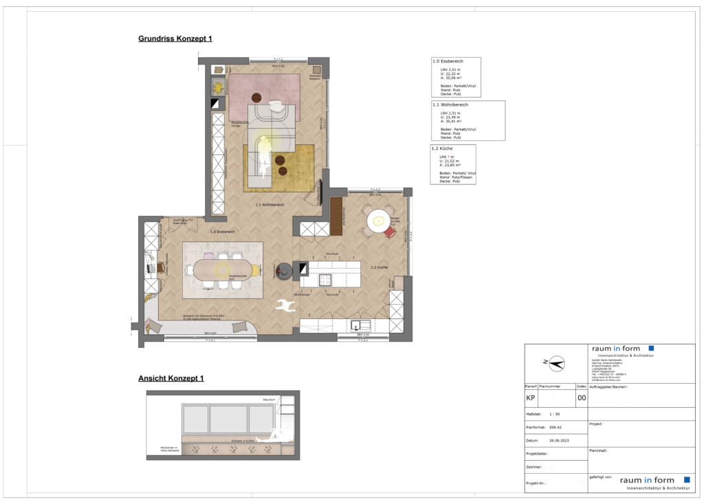
Fertigstellung der Konzeptplanungen für die Neukonzeptionierung des Wohnbereiches eines Einfamilienhauses im Raum Heidelberg….

Im Mai 2023 wurde raum in form – Innenarchitektur & Architektur damit beauftragt, ein einheitliches Konzept für die Neukonzeptionierung eines Einfamilienhauses bei Heidelberg zu entwerfen- dabei sollten u. a. der Wohn- und Essbereich und die Küche des Einfamilienhauses neu konzeptioniert werden sowie alle Räumlichkeiten des Gebäudes aus den 1970-er Jahren modernisiert und auf die Bedürfnisse […]
Aktueller Bautenstand bei der Modernisierung und dem Umbau einer 600 qm großen Finca auf Ibiza…

Kontrolle der ausgeführten Restarbeiten End-Kontrolle und Abnahme der fertiggestellten Gewerke Erledigung von Restarbeiten und Fertigstellung der Gewerke Elektro, Sanitär, Heizungs- und Klimatechnik Fertigstellung der Bodenbeläge in den Außenbereichen Fertigstellung der Montage der außenliegenden Klappläden an den Fenstern Einbringung der neu konzipierten Einrichtung und der Dekorationselemente in die Innenbereiche Befüllen der neu gebauten Pflanzbeete im Außenbereich […]
Aktueller Bautenstand des zweiten Bauabschnitts der Modernisierung eines Bürokomplexes im Raum Darmstadt…

Herstellung und Verschluss der Wandschlitze für die Elektroinstallationen Verschluss der Bodenöffnungen der Bodentanks Verstärkung der Trockenbauwände Vorbereitung der Fußbodenheizungsinstallation Vorbereitung der Installation des Verteilerkastens