Nachdem „raum in form– Innenarchitektur & Architektur“Ende November 2022 mit der Grundlagenerarbeitung, den Konzeptplanungen, der Ausarbeitung von Material-, Produkt- und Farbvorschlägen sowie mit der Kostenschätzung für die Modernisierungsmaßnahmen beauftragt wurde, begann das Projektteam wenige Tage nach der Auftragserteilung mit dem örtlichen Aufmaß.
In einem ausführlichen Konzept- Brainstorming und unter Berücksichtigung der von den Bauherren definierten Wünsche und Anforderungen, entwickelt das raum in form- Projektteam mehrere kreative und individuelle Ansätze zur innenarchitektonischen Gestaltung des in „Split-Level-“ Bauweise in den 1980-er Jahren errichteten Fachwerkhauses. Die im Anschluss erarbeiteten individuellen Konzeptentwürfe für die Modernisierung des Fachwerkhauses wurden den Bauherren nur zwei Monate nach der Auftragserteilung in einer umfangreichen Konzeptvorstellung und in Verbindung mit der Präsentation der ganzheitlichen Material-, Produkt- und Farbvorschläge präsentiert.
Für das Einfamilienhaus wurden pro Geschoss zwei unterschiedliche Konzepte erarbeitet, welche im Anschluss an die Konzeptpräsentation und nach den nachfolgenden intensiven Abstimmungen zwischen den Bauherren und dem Projektteam derzeit zu einem Finalkonzept zusammengefügt werden.
Das großzügige Einfamilienhaus befindet sich im Main-Kinzig-Kreis und umfasst drei „Split- Level“- Geschosse mit einer Grundfläche von ca. 220 qm. Die von dem Projektteam erarbeiteten Gestaltungsvorschläge im „Nature-Living-Stil“ bezogen die bestehende Fachwerkoptik mit Harmonisierung der charakteristischen Eigenschaften des Fachwerkhauses mit ein und entsprachen genau dem von den Bauherren im Rahmen der Neukonzeptionierung ihres Einfamilienhauses gewünschten modernen Stil. Für ein gelungenes Gesamtensemble sind bei diesem Gestaltungskonzept natürliche Materialien, der bewusste Einsatz von Licht und Schatten sowie ein helles Farbkonzept unabdingbar.
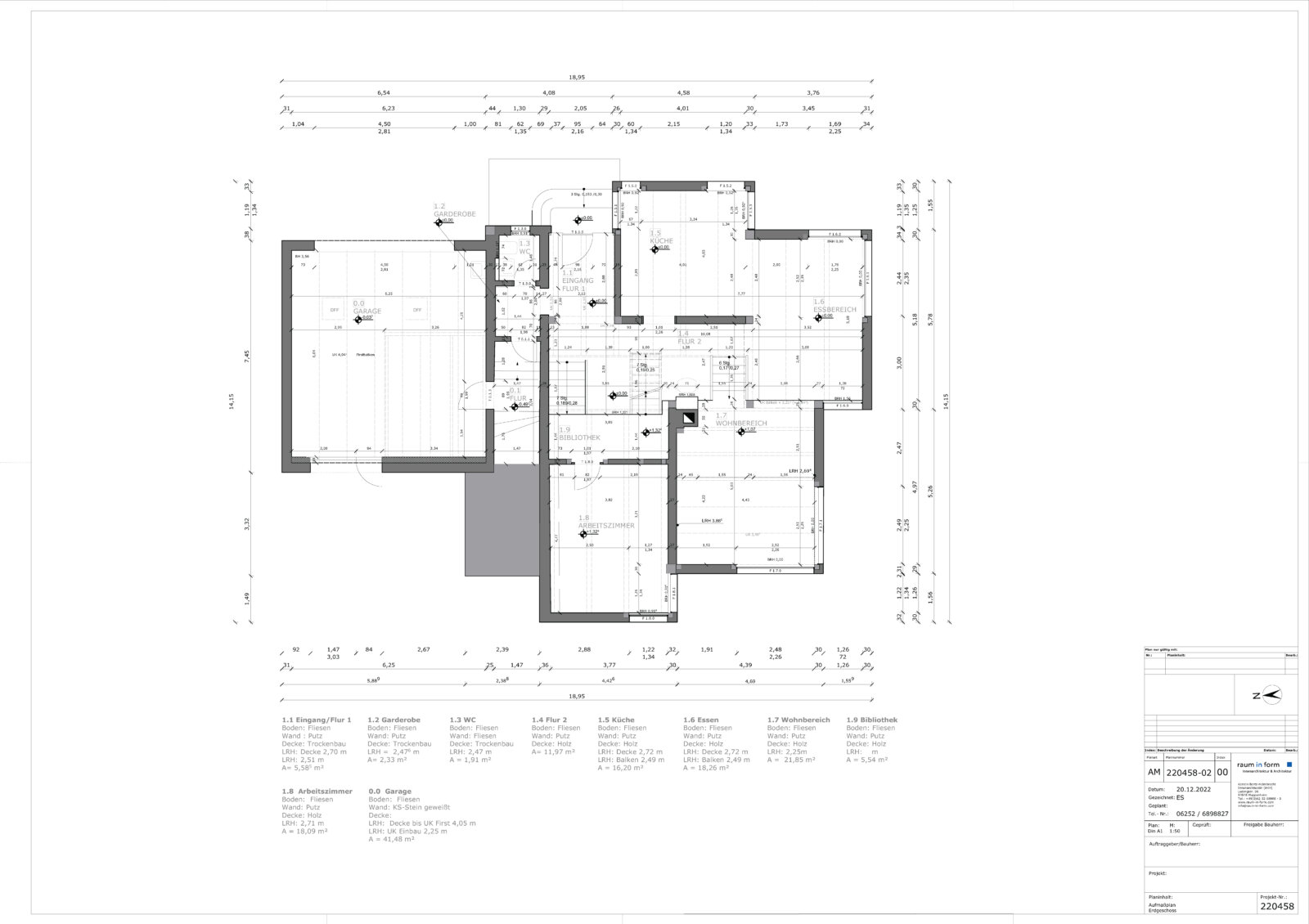
Im Erdgeschoss wurde daher ein offener Grundriss konzipiert, welcher partiell durch Einbauten und Gestaltungselemente in entsprechende Bereiche zoniert werden kann. Die beiden Konzepte unterscheiden sich in ihrer Raumstruktur und Offenheit- während im ersten Konzept die bestehende Grundrissstruktur des Gebäudes Grundlage des Konzeptentwurfs war, erhielt das zweite Konzept eine noch offenere Raumgestaltung. Dabei wurden individuelle Einbauten mit Bezug auf die vorhandenen Höhenunterschiede im Gebäude entwickelt. So bietet diese Raumstruktur eine individuelle und freie Nutzung der Räumlichkeiten. In diesem Zusammenhang erleichtert ein Materialwechsel im Boden die optische Zonierung des Eingangsbereiches, der Küche und des Esszimmers in den Wohnbereich. Die offene Grundrissstruktur im Erdgeschoss wird durch einen freizügigen Luftraum mit dem Obergeschoss harmonisch in Verbindung gebracht. Dabei bieten die Räume im Obergeschoss eine Rückzugsmöglichkeit für alle Familienangehörige.
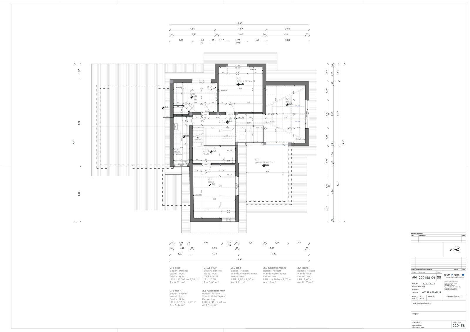
Im Obergeschoss befindet sich der private Bereich der Familie- zwei Schlafzimmer, ein Master-Badezimmer, der Hauswirtschaftsraum sowie das Arbeits- und Kreativzimmer. Dieses Geschoss wurde unter dem Aspekt der Platzoptimierung und einer minimalistischen, modernen und hellen Gestaltung konzipiert. In den Dachschrägen findet sich eine Vielzahl von Einbauelementen wieder- diese beinhalten Arbeitsflächen, Sitzbereiche, Stauräume und Spiegelelemente.
Zusätzlich wurden bereits mit den verschiedenen entwickelten Konzepten mehrere Möglichkeiten der energetischen Sanierung dargelegt. Diese Sanierungskonzepte werden im Anschluss und nach Erstellung des Finalkonzepts durch die Fachingenieure und einem Energieberater weiter detailliert.
Im nächsten Schritt wird nach Erstellung des Finalkonzepts die Kostenschätzung für die Modernisierung sowie der Sanierungsfahrplan durch den Energieberater ausgearbeitet, so dass die Fördermittel für die energetische Sanierung beantragt werden können.