Infolge der Beauftragung von „raum in form– Innenarchitektur & Architektur“ Ende April 2023 mit der Grundlagenerarbeitung, den Konzeptplanungen und der Kostenschätzung für die Baukosten für die Sanierung der Eigentumswohnung, wurde direkt nach der Auftragserteilung erste Konzeptskizzen erarbeitet. Das dafür notwendige Aufmaß konnte aufgrund der ständigen Präsenz vor Ort auf Ibiza bereits kurz nach der Auftragserteilung durchgeführt werden.
Die vielfältigen Entwurfsideen mündeten schließlich in zwei konkreten Konzeptentwürfen, die Mitte Juni im Rahmen einer Konzeptvorstellung präsentiert wurden. In diesem Zuge wurden die Konzepte gemeinsam mit dem Bauherrn diskutiert, um die wesentlichen Elemente für ein mögliches Finalkonzept zu identifizieren.
Das erste Konzept orientierte sich vorwiegend am Bestand der Wohnung. Die konkreten Umbaumaßnahmen zielen daher auf die Öffnung der einzelnen Räume im Gesamtkontext der Wohnung ab, wobei diese trotzdem in ihrer Grundstruktur bestehen bleiben sollen. Dabei ist die Neugestaltung sämtlicher Wand- und Bodenflächen sowie der Elektrik und Sanitärleitungen vorgesehen. Das Mobiliar in der Küche ist auf Wunsch der Bauherren ebenso wie im Badezimmer zu erneuern. In diesem Zusammenhang erfährt das Badezimmer in diesem ersten Konzept die mitunter größte Veränderung– die Aneinanderreihung der bestehenden Sanitärobjekte soll aufgelöst und in ein offeneres Raumkonzept umgewandelt werden, wobei die Reduktion von ungenutzten Flächen um die Sanitärobjekte herum auf die Steigerung des Raumgefühls in diesem aktuell gefühlt wesentlich kleineren Raum abzielt.
Im zweiten Konzept entsteht durch die komplette Öffnung und Neukonzeption der Küche mit einer mittigen Kücheninsel ein wesentlicher Fokus auf dem Wohn- und Essbereich. Das Aufbrechen der bisherigen Zellenstruktur der Küche bewirkt eine durchgehende Kommunikation im oberen Riegel der Wohnung. Im unteren Teil wurde die Minimierung der Verkehrsfläche im Flur in Angriff genommen, sodass diese Fläche der Vergrößerung des Badezimmers zugutekommt. Der gewonnene Raum verbessert nicht nur die Bewegungsfreiheit im Bad aufgrund des versetzten Zugangs, sondern öffnet auch den Raum für einen zusätzlichen Schrank mit Stauraum für Bademäntel, Handtücher und Pflegeprodukte.
In beiden Konzepten wurde die bislang eher mitteleuropäisch anmutende Wohnung in einen ibizenkischen Stil überführt, gleichzeitig aber in Küche und Badezimmer modern interpretiert. Während der Boden überall durchgehend gefliest werden soll, ist der kieselsteinähnliche „Pebble-Boden“ im Badezimmer eine Reminiszenz an die traditionelle Bauweise und Handwerkskunst auf Ibiza. Die aktuell nur mit großer Kraftanstrengung zu öffnenden Holzschiebefenster sollen durch moderne Faltfenster im für Ibiza typischen „Iroko“-Holz ersetzt werden. Die Ausstattung mit Klimageräten und Ventilatoren soll den Aufenthalt in den Innenräumen im Sommer in Zukunft wesentlich angenehmer gestalten.
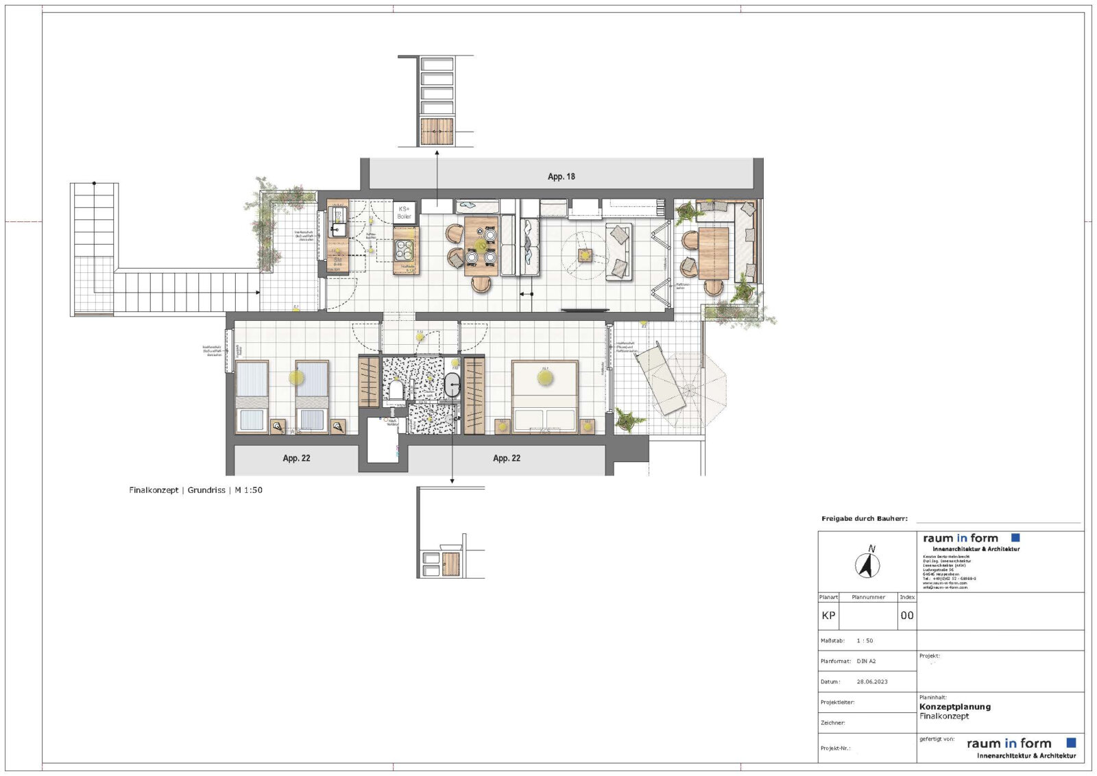
Die Wohnung weist somit im ersten Konzept eher nur punktuelle Veränderungen auf und kommt nach wie vor mit „klassischem“ Mobiliar aus. Dagegen wurden die Raumfolgen im zweiten Entwurf deutlich raumoffener gestaltet und nach den Bedürfnissen des Bauherrn neu konzipiert. Um dem ibizenkischen Stil zu folgen, wurden die Möbel in Konzeptvariante zwei, sowohl im Innenraum, als auch auf der Terrasse, in gemauerter Bauweise als Einheit mit der Wohnung betrachtet.
Die während der Konzeptvorstellung protokollierten Wünsche und Reaktionen der Bauherren sollen nun in die Erstellung eines Finalkonzepts einfließen.
Nach der Fertigstellung der Konzeptplanungen ist „raum in form– Innenarchitektur & Architektur“ auch für die Erarbeitung sämtlicher Ausführungsplanungen sowie für die Vorbereitung und Durchführung der Vergabe an die verschiedenen Gewerke aus dem über viele Jahre hinweg gewachsenen Handwerkernetzwerk auf den Balearen, vorgesehen.