Fertigstellung der Konzeptplanungen für die Neukonzeptionierung des Wohnbereiches eines Einfamilienhauses im Raum Heidelberg….

Im Mai 2023 wurde raum in form – Innenarchitektur & Architektur damit beauftragt, ein einheitliches Konzept für die Neukonzeptionierung eines Einfamilienhauses bei Heidelberg zu entwerfen- dabei sollten u. a. der Wohn- und Essbereich und die Küche des Einfamilienhauses neu konzeptioniert werden sowie alle Räumlichkeiten des Gebäudes aus den 1970-er Jahren modernisiert und auf die Bedürfnisse der jungen vierköpfigen Familie angepasst werden.

Nach der Beauftragung der Konzepterstellung, der Ausstattungsplanung, der Beleuchtungskonzepte und der Materialauswahl wurden die Kunden zu einem gemeinsamen Brainstorming mit dem raum in form- Planungsteam für die Konzepte eingeladen. Auf Grundlage des gezeichneten Bestandsgrundriss wurden die Wünsche und Vorstellungen der Kunden besprochen und bereits in dem Brainstorming grob skizziert.

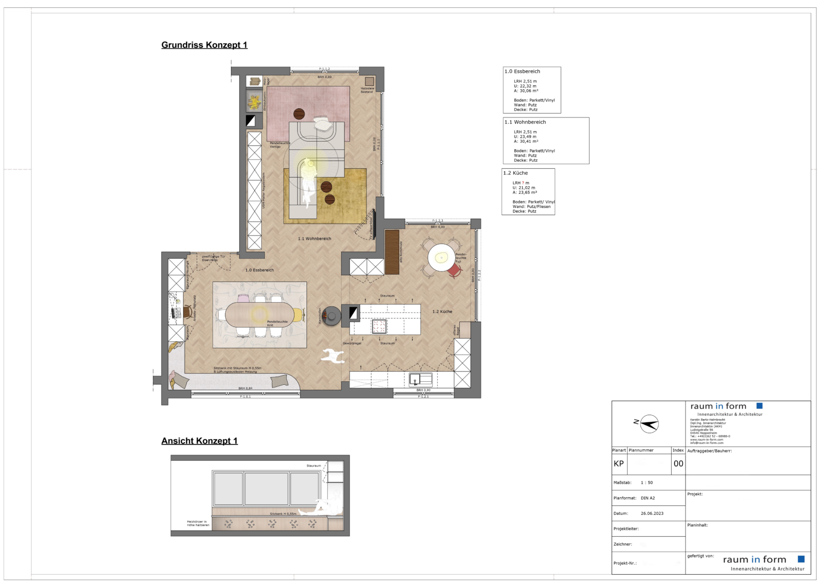
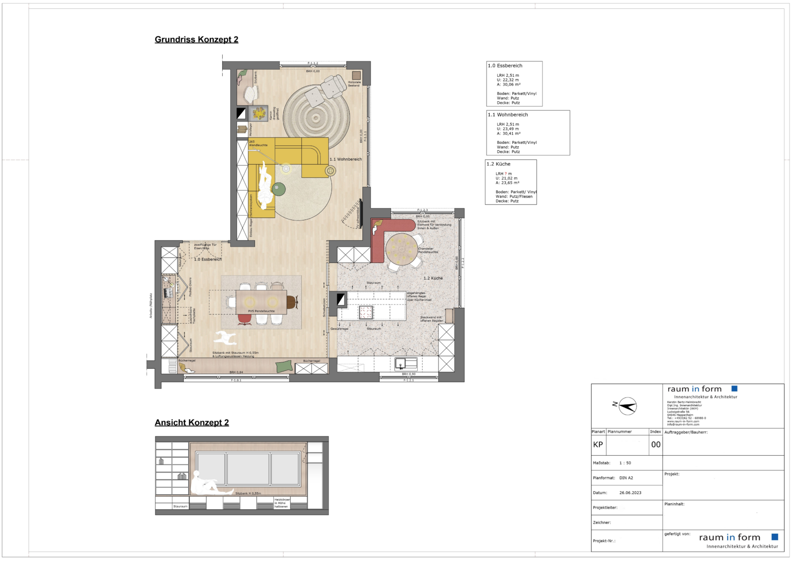
Auf Basis des gemeinsamen Brainstormings und den vorherigen Besprechungen wurden im Anschluss zwei Konzeptvarianten erarbeitet. Die Aufgabe bestand darin, ein einheitliches Konzept für die Wohnräume zu entwickeln, in welchen sich die junge Familie wohlfühlt. Die Herausforderung dieses Projekts bestand darin, die einzelnen voneinander getrennten Bestandsräume sowie den geplanten Küchenanbau in einem einheitlichen Konzept zu vereinen. Gleichzeitig galt es, den Wunsch der Kunden zu erfüllen, den Innen- und Außenraum harmonisch miteinander zu verbinden.

Im Mittelpunkt der Planung für das Wohnzimmer stand ein modulares Sofa, das die Kunden bereits im Vorfeld ausgewählt hatte. Dieses wurde in beiden Konzepten so positioniert, dass es verschiedene Blickrichtungen innerhalb des Raumes, zum Garten und zur Terrasse hin ermöglichte. Zudem wurde rund um den bereits existierenden Kaminschacht ein neuer Einbaukamin konzipiert. Dieser beinhaltete sowohl einen Platz zur Holzaufbewahrung als auch eine gemütliche Sitzecke.



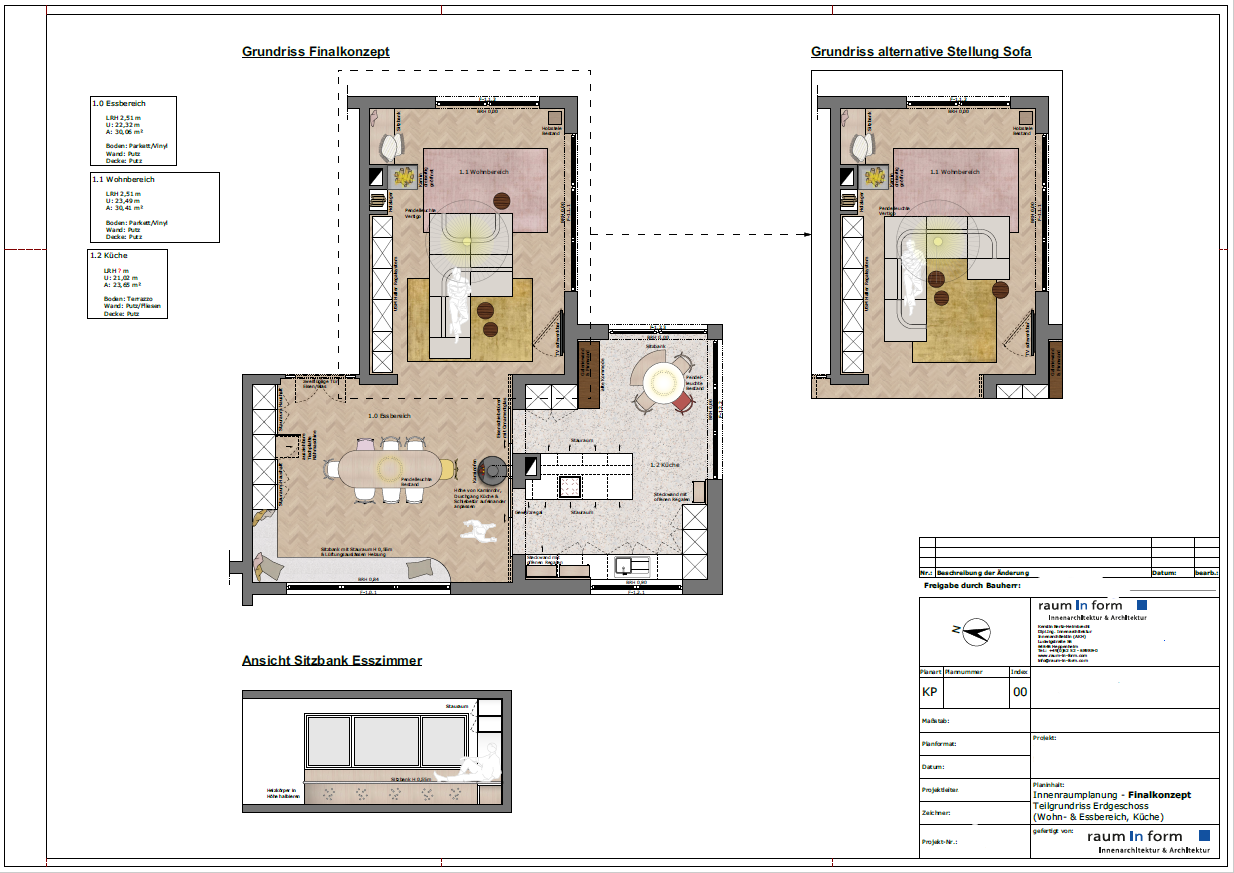
Um eine nahtlose Integration der Räumlichkeiten und die Erleichterung des alltäglichen Zusammenlebens zu gewährleisten, wurde auf eine physische Trennung zwischen Wohn- und Esszimmer verzichtet. Im Zentrum des Esszimmers stand die Planung eines großen Esstisches, der ausreichend Platz für die ganze Familie bietet. Ein weiteres Highlight des Raumes stellt die vor dem Fenster konzipierte Sitzbank dar. Ob offen gestaltet, wie im ersten Konzept, oder von Bücherregalen umgeben, wie im zweiten Konzept, lädt die Sitzbank zu entspannten Momenten mit herrlicher Aussicht ein. Das Bedürfnis der Familie nach maximalem Stauraum wurde durch einen maßgeschneiderten Einbauschrank entlang der gesamten Wand erfüllt. In beiden Konzepten bietet dieser nicht nur Stauraum, sondern auch die Möglichkeit, diverse Haushaltsaufgaben, wie Bügeln oder Nähen, zu erledigen.


Die Kunden äußerten außerdem den Wunsch, den bestehenden Kaminschacht zwischen Esszimmer und Küchenanbau für einen weiteren Kaminofen zu nutzen. Zudem bestand der Wunsch nach der Möglichkeit, das Esszimmer von der Küche abzutrennen. In Konzept 1 wurde daher der Kaminofen und in Konzept 2 ein Schiebetürsystem eingeplant. Für die Küche stellten sich die Kunden eine einladende Atmosphäre mit ‚Werkstatt-Feeling‘ vor. Das raum in form- Planungsteam hat diese Vision so umgesetzt, dass einerseits eine modulare Steckwand konzipiert wurde, die es den Eltern und Kindern ermöglicht, individuelle Stauraum-Szenarien zu gestalten. Andererseits wurden abgehängte Stahlrohr-Regale vorgeschlagen-zusätzlich wurde in beiden Konzepten eine gemütliche Frühstücksecke für alle Familienmitglieder entworfen.



Im nächsten Schritt unterstützte raum in form-Innenarchitektur & Architektur die Kunden dabei, ihre Wünsche und Vorstellungen von einem einladenden, hellen und behaglichen Ambiente in ein zusammenhängendes Gestaltungskonzept zu integrieren. Hierzu wurden für jeden Raum und jedes Konzept Moodboards erstellt, die Material-, Produkt- und Farbvorschläge aufzeigen.

Konzept 1 kombinierte Elemente aus natürlichen Materialien, wie beispielsweise Holz, mit modernen Elementen. Um eine warme und einladende Atmosphäre zu schaffen, wurden helle Oberflächen und sanfte Materialien verwendet und Akzente in Gelb- und „Nude“-Tönen gesetzt. Diese Farbakzente finden sich beispielsweise in Teppichen oder in unterschiedlich farbigen Stühlen wieder.

Konzept 2 folgt einer ähnlichen Designphilosophie wie Konzept 1, wobei auch hier eine Mischung aus natürlichen und modernen Elementen im Vordergrund steht. Im Unterschied zu Konzept 1 werden jedoch die Farben Grün und Gelb etwas mutiger eingesetzt, wie beispielsweise beim Sofamaterial oder in der Tapete. Zudem schlug das Planungsteam den Kunden vor, die Farbakzente in der Küche durch einen Boden aus Terrazzofliesen oder eine Arbeitsplatte aufzugreifen.

Im weiteren Verlauf des Projekts werden neben der abschließenden Finalkonzepte auch noch eine Beleuchtungskonzeption erstellt sowie Materialien und Produkte ausgewählt. Diese werden dann für die Kunden in einem Raumbuch zusammengefasst, das de Grundlage für die bauliche Umsetzung ist, die für das dritte Quartal dieses Jahres geplant ist.