Exklusive und innovative Loft-Wohnung

Loftausbau von Raum in Form

Projekt: Umbau zweier Industriehallen im Raum Darmstadt zu einem exklusiven, modernen und innovativen Loft, in dem Wohnen und Arbeiten eine symbiotische Beziehung eingehen

Der Inhaber eines mittelständigen Unternehmens im Raum Darmstadt suchte im Januar des Jahres 2015 den Kontakt zu “raum in form- Innenarchitektur & Architektur”. Dabei formulierte er gegenüber der Inhaberin des Planungsbüros, der Innenarchitektin Kerstin Bertz, die Idee, einen Teil seiner auf dem Firmengelände gelegenen Industriehallen in ein modernes und exklusives Loft zu Wohnzwecken ausbauen zu lassen.

Schon im ersten Gespräch zwischen dem Unternehmer und der Innenarchitektin wurden wesentliche Eckpunkte klar:

  1. Die individuellen Anforderungen des Bauherren sowohl an das Raumkonzept, die Technik als auch an das Design werden eine große Herausforderung. Diese müssen in höchstem Maße auf die Gegebenheiten des Objekts bzw. auf die speziellen Wünsche des Bauherren zugeschnitten sein. Zum einen sollte ein ausschließlich privat genutzter Bereich entstehen, indem z.B. die Schlafzimmer und Bäder untergebracht sind. Daneben war der Bereich Wohnen, Kochen und Essen als ein „halb“-privater Bereich vorzusehen.

    Zum anderen wünschte sich der Bauherr einen Bereich, der für die Kommunikation mit und für die Entspannung von Kunden, Freunden und Mitarbeitern vorgesehen ist. Hier sollte die Möglichkeit bestehen, sich zwischen Freizeitaktivitäten einmal abseits des Büroalltags auszutauschen und in angenehmer Atmosphäre neue Ideen und Strategien entwickeln zu können. Darüber hinaus sollte es eine in das Wohnkonzept offen eingebundene Stellfläche für mehrere exklusive Fahrzeuge und Oldtimer geben (wobei einer der Stellflächen zusätzlich sogar noch mit einer nicht sichtbaren Hebebühne ausgestattet werden sollte)– ein lang gehegter Traum des Bauherren.

  2. Der von dem Bauherrn vorgegebene Zeitraum der zeitlichen Umsetzung –beginnend mit dem Erstgespräch bis zur Bezugsfertigkeit- war mit nur 5 Monaten sehr ambitioniert.
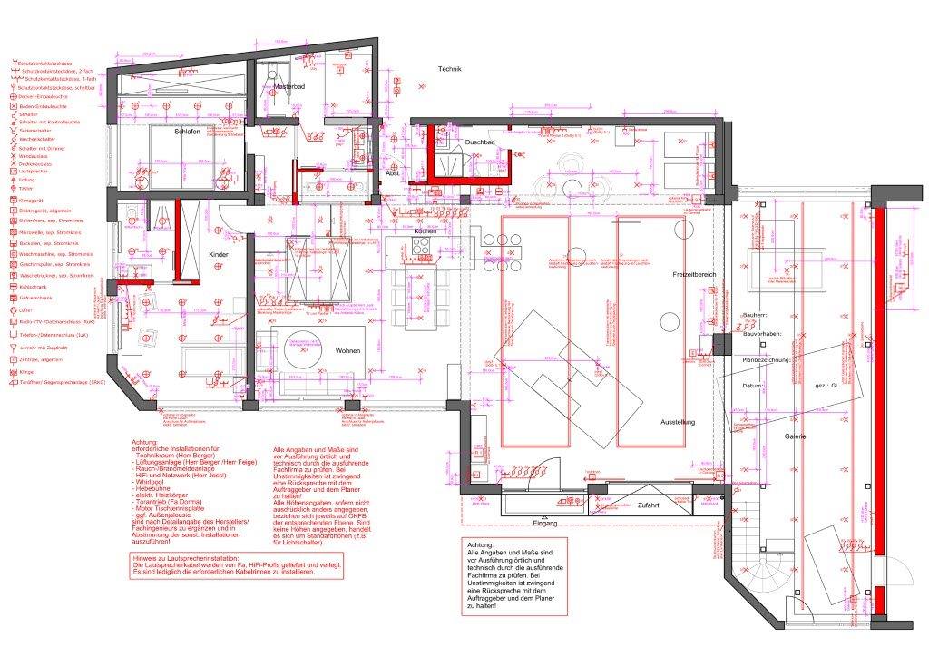
  3. „raum in form – Innenarchitektur + Architektur wurde direkt nach dem Erstgespräch mit der Planung – von der Konzept- und Entwurfsplanung, über die Ausführungsplanung für die erforderlichen Gewerke wie Trockenbau, Malerarbeiten, Elektro und Beleuchtung über Detailplanung für die sanitären Bereiche bis hin zur Auswahl der zum Einsatz kommenden Farben und Einzelmöbel beauftragt. 

Zustand vor dem Umbau

Als einige Wochen später für den Bauherren klar wurde, dass er diese Aufgabe in der Umsetzung keinesfalls alleine stemmen kann, erweiterte er den Auftrag für das Planungsbüro aus Heppenheim um die hauptverantwortliche Bauleitung, Bauüberwachung, Projektleitung mit Steuerung sämtlicher Gewerke. Das Erstellen und Überwachen eines detaillierten, taggenauen Bauzeitenplans war hier von entscheidender Bedeutung. Damit lag neben der Planung nun die gesamte Projektabwicklung, von der Ausschreibung und Vergabe diverser Gewerke, über die Bestellung der Möbel bis hin zur abschließenden Abnahme und Rechnungsprüfung in den Händen von der Innenarchitektin Kerstin Bertz.

So erarbeitete „raum in form – Innenarchitektur + Architektur“ unter der Führung der Innenarchitektin Kerstin in kürzester Zeit ein ganzheitliches Konzept, das den Bauherren sofort begeisterte und vollumfänglich überzeugte, denn es war gelungen, die außergewöhnlichen Wünsche des Bauherrn auch im Hinblick auf die unterschiedlichen Anforderungen an die Nutzungsvarianten, in ein großzügiges Gesamtkonzept einzubinden.

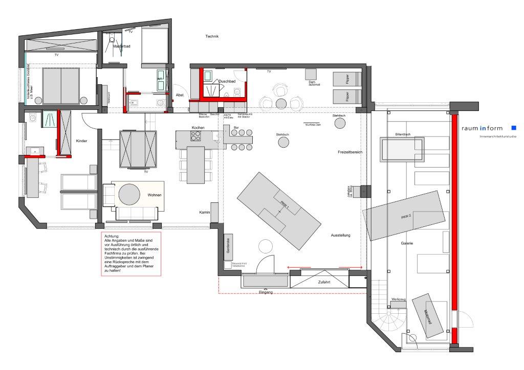
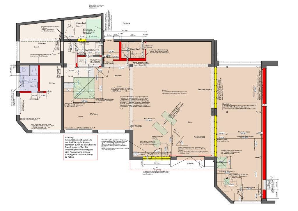
Dabei wurden die Schlafräume und Bäder in den hinteren Bereich der Halle verlegt. Da aufgrund der Hanglage des Gebäudes bereits ein Teil der Halle auf einer höheren Bodenebene angelegt war, sollte nach den Vorstellungen des Innenarchitektur- Büros „raum in form“ diese Ebene erweitert werden, um so einen ebenerdigen Übergang zwischen Kinderzimmer, Schlafzimmer und Masterbad zu ermöglichen. Dieser Ebene vorgelagert wurde der Wohnbereich, der offen übergeht in den Koch-Essbereich. Ohne sichtbare Schnittstelle geht dieser in den umfassend ausgestatteten und aufwendig gestalteten Mitarbeiterbereich über. Wesentliches Kriterium des Bauherrn war dabei auch, die Erhaltung des Industriehallencharakters in den nicht ausschließlich privat genutzten Räumen.

Entwurfsplanung

An der Frontseite wurden vorhandene Fensterbrüstungen aus dem Bestand herausgebrochen um eine repräsentative Eingangsanlage realisieren zu können. So kann heute das Loft über ein vorgelagertes Podest mit bündig eingelassener Schmutzfangmatte durch eine großzügige Glastüranlage betreten werden. Das daneben befindliche Industrierolltor wurde mit einer modernen, in der Optik der Eingangsanlage angepassten mehrteiligen und elektrisch betriebenen Glasschiebetüranlage ausgetauscht. Diese Variante war aufgrund der gewünschten Positionierung der Fahrzeuge innerhalb des Lofts erforderlich. Zahlreiche und teils aufwendige Simulationen der Fahrlinien/ Wendekriese der PKWs gingen der Umsetzung voraus.

Beim Betreten des großzügigen lichtdurchfluteten Raumes beeindruckt zunächst die konsequent geradlinige Gestaltung. Eine gelungene Kombination aus hochwertigen, eleganten Materialien, wie z.B. die hochglanzlackierte Küchenfront oder der edle Bezugsstoff der Bestuhlung und den sichtbaren technischen Ausstattungen!

So sind z.B. die gesamten Wickelfalzrohre der diffizil auf die speziellen Anforderungen des Bauherrn ausgerichteten Lüftungsanlage frei sichtbar unter die rohe Hallendecke montiert. Keine leichte Aufgabe, wenn man bedenkt, dass eine absolut reine, also rauch- und abgasfreie Luft im Wohn-/Essbereich gefordert war, auch wenn ohne räumliche Abgrenzung im Mitarbeiterbereich geraucht wird. Gleichzeitig sollte die Installation zwar als gestalterisches Element eingesetzt werden, durfte aber keinesfalls störend wirken. In enger Zusammenarbeit mit der hauseigenen Abteilung für Lüftungsanlagen des Bauherren ist diese hochanspruchsvolle Symbiose geglückt. Nun korrespondieren die Lüftungsrohre mit all den technischen Details mit den Ausstattungs- und Einrichtungsgegenständen.

Ausführungsplanung

Der vorgefundene Rohfußboden wurde durchgängig mit einer Fußbodenheizung und Heizestrich ausgestattet. Auf einen zusätzlichen Oberbodenbelag wurde aufgrund des angestrebten Erscheinungsbildes verzichtet. An Stelle dessen wurde der Estrich abgeschliffen und mit Epoxydharz vergossen. Die nun sichtbare Struktur des Estrichs ist leicht glänzend und wirkt so wie frisch aufgewischt. Eine besondere Herausforderung stellte hierbei die Befahrbarkeit durch PKW`s dar. Außerdem wurde eine bodengleiche Hebebühne für die Fahrzeuge integriert.

Um den Hallencharakter weiter zu unterstreichen, war es für die Innenarchitektin Kerstin Bertz dann auch nur konsequent, alle Elektroinstallationen sichtbar zu verlegen. Während die Hauptzuleitung über unter der Decke monierte Kabelpritschen erfolgt, findet die Anbindung der Aufputz-Elektroarmaturen über in Wasserrohre verlegte Leitungen statt.

Passend dazu wurden die aus Kalksandstein gefertigten Außenwandflächen lediglich mit einem weißen Anstrich versehen, sodass auch hier die Steinstruktur einen Beitrag zum Gesamtbild leistet.

Beeindruckend stellt sich jetzt auch der großzügige Mitarbeiterbereich dar. Zwar war dieser von Anbeginn an vorgesehen, doch als sich der Bauherr während der bereits weit fortgeschrittenen Bauausführung dazu entschloss, auch eine „Play- und Relax- Area“ und einen Fitnessbereich zu integrieren, konnte dies nur durch die Hinzunahme einer weiteren angrenzenden Halle gelingen. „raum in form – Innenarchitektur + Architektur“ stellte sich sofort auf die neue Situation ein und passte die Ausführungs-Planungen aller Gewerke den neuen Anforderungen an. So wurde eine tragende Wand auf der gesamten Hallentiefe geöffnet, was alleine durch das Einbringen von statischen Ersatzmaßnahmen möglich war. Eine bauseits vorhandene Metallempore wurde umgebaut und dient jetzt, versehen mit einer im Haus des Bauherren speziell angefertigten Treppe, als Galerie für den FitnessbereichAusgestattet mit diversen Fitnessgeräten, Hanteln, einem Ruhebereich sowie einem Solarium und einem groß bemessenem Flat-TV ist der Gang ins Fitnessstudio überflüssig geworden.

Impressionen während des Umbaus – Teil 1

Unterhalb der Galerie befindet sich die „Play- Area“ mit Billardtisch, Flipperautomaten und elektronischer Dartscheibe. Die geringere Raumhöhe an dieser Stelle kommt der Atmosphäre beim Billardspielen entgegen. Dennoch ist dieser Bereich, der zusätzlich die Stellfläche für einen der PKWs bereithält, keinesfalls beengt– öffnet sich doch die gesamte Front zu dem fast 4 m hohem Loftbereich. Die Gestaltung der Rückwand ist eine Besonderheit und hat –wie fast alles bei diesem Projekt- nichts mit dem üblichen Wohnungsbau gemein. Nach den speziellen Wünschen des Bauherren und in enger Zusammenarbeit zwischen einem hervorragendem Graffiti- Künstler und den Innenarchitektinnen entstand ein ca. 12m breites und 2,5m hohes Graffiti mit einem an den Film „Le Mans“ angelehnten Motiv. Ein idealer Hintergrund für die Edelfahrzeuge!

Die vor einer Säule montierte Jukebox liefert –angeschlossen an ein ausgeklügeltes modernes HiFi-System die passende musikalische Untermalung.

Wer nicht an den außergewöhnlichen Stehtischen, es handelt sich hierbei um ehemalige Ölfässer, verweilen möchte, kann sich in den Bereich unterhalb einer Stauraumebene zurückziehen. Ausgestattet mit futuristisch anmutenden Drehsesseln aus einer Aluminiumschale mit komfortabler Polsterung mit cognac-farbenem Lederbezug, einem Unikat-Beistelltisch und einem Getränkekühlschrank, der sich in einem Hydranten verbirgt, bietet sich hier die Möglichkeit für Gespräche jeglicher Art. Selbstverständlich gibt es auch hier einen großformatigen Flat-TV, der mit den Flipperautomaten und der elektrischen Dartscheibe das Unterhaltungsangebot ergänzt.

Impressionen während des Umbaus – Teil 2

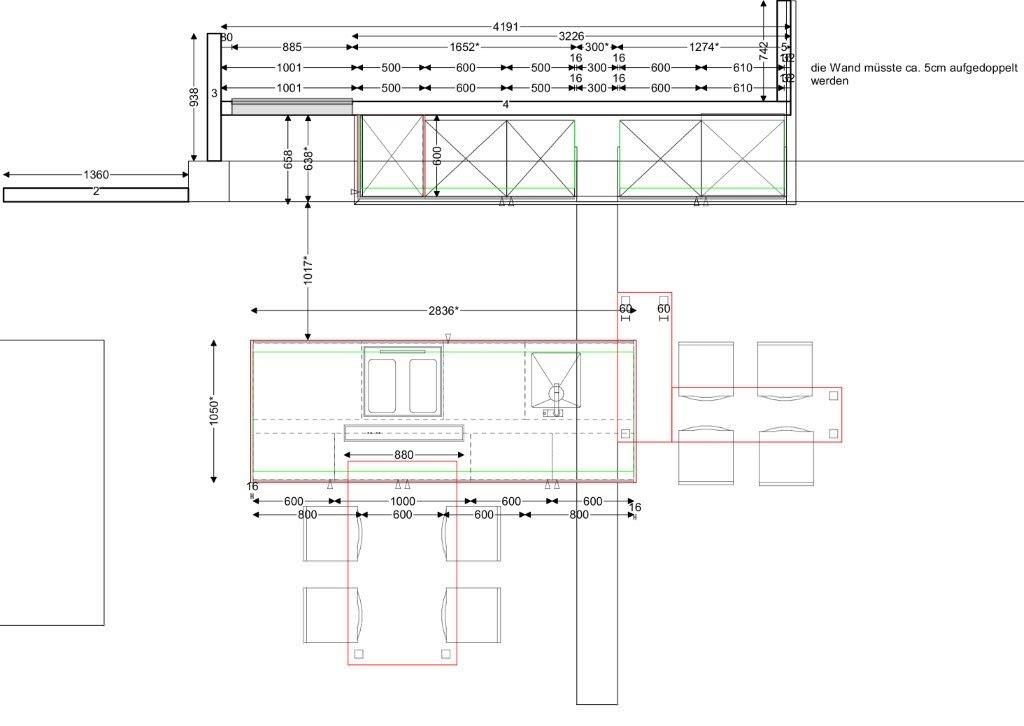
Eine an den freistehenden Küchenblock angebundene Thekenplatte verbindet optisch und funktional die Bereiche “Mitarbeiter“ und „Kochen“.

Eine in Richtung des Wohnbereiches ausgerichtete an den Küchenblock angebundene Tischplatte dient als Esstisch.

Auch hier findet sich wieder eine reizvolle Materialkombination. Während die Küchenarbeitsplatte mit einer betonartigen Spachtelung versehen ist, bestehen die Tischplatten aus Holzblanken, die wirken, als seien sie aus Treibgut gefertigt. Und dann wieder der Kontrast zu den edel gepolsterten Hochstühlen mit Edelstahl-Untergestell!

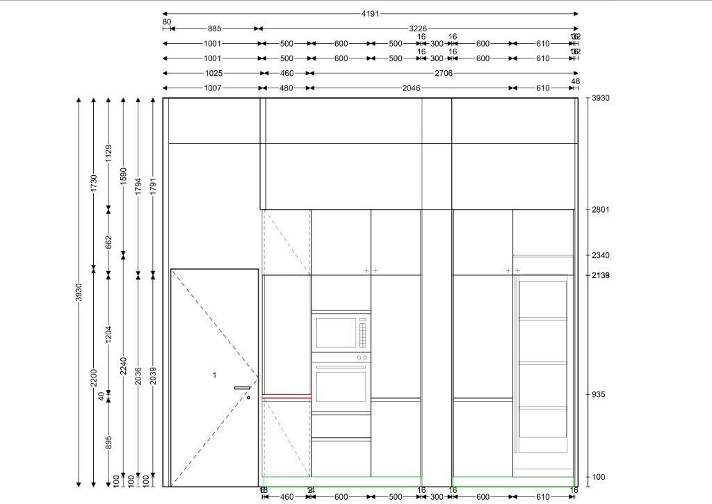
Für die flächenbündige Einbindung der Hochschrankzeile der Küche wurde eigens eine passgenaue Wandnische in Trockenbau hergestellt. Die Oberfläche wurde dann mit einer aufwändigen Spachtelung in Grünspanoptik versehen. Diese setzt sich durchgängig fort bis in den privaten Bereich. So wird eine optische Anbindung geschaffen, die subtil die einzelnen Zonen unterschiedlicher Nutzung miteinander verbindet.

Hinter der Hochschrankzeile wurde neben einem Vorratsraum ein Gäste-Duschbad installiert. Durch die fugenlose Spachtelung aller Wand- und Bodenflächen, inclusive der bodengleichen Dusche, sowie einer hochwertigen faltbaren Ganzglasduschabtrennung erscheint der eigentlich kleine Raum sehr großzügig.

Impressionen während des Umbaus – Teil 3

Gegenüber des Essbereiches ist der Wohnbereich angeordnet. Dieser ist bewusst spartanisch möbliert. Hier findet sich lediglich ein ausladendes gemütliches Über-Eck-Sofa mit braunem Naturlederbezug mit sichtbaren Nähten. Auf dem hochfloorigen Teppich thront eine Schiffsschraube mit runder Glasplatte, die sich harmonisch in das Gesamtbild des Lofts einfügt. Der außergewöhnliche Kaminofen, der eine Verfeuerung von nahezu 1m-Holzscheiten zulässt, grenzt den Sitzbereich gegenüber dem Eingangsbereich stilvoll ab. Auf Dekoration wurde zugunsten der architektonischen Raumwirkung bewusst verzichtet. Ebenso entschied sich der Bauherr auf Anraten der Innenarchitekten von „raum in form – Innenarchitektur + Architektur“ gegen den Einsatz jeglicher Form von Fensterdekoration, um den puristischen Gestaltungsgedanken nicht zu stören.

Zentrales Element im Übergang von Wohn-/ Mitarbeiterbereich zu den rein privaten Zonen ist ein frei im Raum positionierter Kubus. Dieser wirkt wie eine überdimensionale Skulptur. Der in Leichtbauweise erstellte Block beherbergt eine Ankleide, die von der höher gelegenen Schlafebene aus zu begehen ist. Die der Küche und dem Wohnraum zugewandten Seiten dienen im unteren Bereich mittels großformatigen elektrisch betriebenen Auszügen als Schrankraum. Durch die aufwendige fugenlose Spachtelung in Rostoptik wurde eine skulpturale Wirkung des beeindruckenden Solitärelementes im Raum erzeugt.

Gleichzeitig dient der Kubus zur Filterung der unterschiedlichen Nutzungszonen. Der Raum bleibt weiter in seiner Ganzheit erlebbar, der Einblick in den hinteren Loftbereich wird unterbunden-jeweils seitlich führen 3 LED-beleuchtete Stufen auf die 2.Ebene.

“Play- und Relaxarea”

Im vorderen, über Eck mit 3 großen Fenstern belichteten Raum befindet sich das Kinderzimmer. Während der Ausbauphase äußerte der Bauherr den Wunsch, ein eigenes Bad für die Kinder zu integrieren. „raum in form Innenarchitektur + Architektur“ konnte auch diesem Wunsch entsprechen und realisierte innerhalb des Kinderzimmers ein vollwertiges jugendliches Duschbad „en Suite“. Eine in die Wandnische einlaufende Schiebetür ermöglicht optimale Platzausnutzung.

Entgegen dem Loftbereich sollte hier eine dem Kindesalter angepasste Umgebung geschaffen werden. So wurden hier alle Installationen unter Putz verlegt, eine abgehängte Unterdecke mit integrierter dimmbarer Beleuchtung wurde eingebracht und die glatt verputzten Wände wurden in einem warmen Gelbton farbig angelegt. Dazu bilden die weißen Möbel einen schönen Kontrast. Auf weitere Farben wurde verzichtet, um den Kindern die Möglichkeit der eigenen kreativen Gestaltung zu lassen. Auch das Bad wurde, anders als z.B. das Gäste- und Masterbad, in den Spritzwasserbereichen mit hellen großformatigen, teils mit Graffitimuster versehenen Fliesen ausgestattet. Der Boden wiederum wurde dunkelgrau verspachtelt.

Die Umsetzung eines Schlafzimmers in dem dafür vorgesehenen Bereich stellte eine ganz besondere Herausforderung für Dipl. Ing. Innenarchitektur Kerstin Bertz dar. Was für eine Lagerhalle durchaus als akzeptable Licht- und Frischluftquelle diente, war für die neue Nutzung gänzlich ungeeignet. Das Thema Lüftung wurde dadurch gelöst, dass eine nach modernster Technik erstellte Lüftungsanlage nahezu unsichtbar in die abgehängte Unterdecke integriert wurde. Lediglich ein elegant eingefasster Schlitz in der Decke lässt eine dahinter installierte Technik vermuten. Völlig ohne Zugerscheinungen ist nun eine künstliche Be- und Endlüftung möglich.

Schlafbereich, Masterbad und Kinderbad

Da das auf einer Brüstungshöhe von ca. 1,60 eingebaute Bestandsfenster in einem Abstand von nur ca. 50 cm zum nächsten Gebäude eingebaut war, hatte es lediglich eine Alibifunktion. So erwies es sich als gelungene Lösung, diese Wandseite vollflächig mit einem LED-hinterleuchteten Bildmotiv zu verkleiden. Hierbei fiel die Entscheidung für ein Segelmotiv, da der Bauherr selbst dieses schöne Hobby pflegt. Durch diese Art der Wandgestaltung– insbesondere durch die hohe Lichtqualität und die richtige Motivwahl– gewinnt der innenliegende Raum optisch an Weite und zu keinem Zeitpunkt wird realisiert, dass man sich in einem innenliegenden Raum befindet. Ergänzt wird die Einrichtung durch eine großformatige 3-teilige Schiebefront, mittig in verspiegelter Ausführung, hinter der sich das Schranksystem mit integriertem TV befindet. Das Bett ist –wie so vieles in diesem interessanten Objekt- eine Einzelanfertigung: dem Wunsch des Bauherren folgend wurde ein Entwurf aus Stahlträgern realisiert, die lediglich einen Klarlack-Anstrich erhielten. Ebenso wie im Kinderzimmer, so wurde auch im Schlafzimmer die Installation unter Putz verlegt und die Wände glatt verputzt. Unter der glatt gestrichenen Unterdecke verbirgt sich nicht nur die bereits erwähnte Lüftungstechnik, sonder auch Beleuchtungstechnik und ein baukonstruktiv notwendiger Deckenversatz.

Direkt gegenüber befindet sich das Masterbad. Dieses öffnet sich über eine überbreite Ganzglasschiebetür. Das Türblatt selbst ist aus Sichtschutzgründen teilweise satiniert und verläuft in einer Wandnische. Auch hier wurde vom Standard abgewichen: ein spezielles System ermöglichte diese Art der Konstruktion, wodurch es nicht mehr erforderlich ist, eine Revisionsöffnung für die Technik der Schiebetüranlage vorzuhalten. So ist sowohl auf der Wandaußen- wie auf der Wandinnenseite eine durchgängige fugenlose Fläche möglich. Der Blick fällt sodann auf die großzügige edle Doppelwaschtischanlage. Passend hierzu der flächenbündig in die Wand integrierte Spiegelschrank, der speziell der Körpergröße des Bauherren angepasst wurde. Rechter Hand zur Waschtischanlage befindet sich der WC-/Bidetbereich, der in einem Raum vom Hauptbad separiert wurde. Ein in die Trennwand zum Loftbereich integriertes Oberlicht lässt den Einfall von Tageslicht zu. Die Schiebetür ist in gleicher Weise wie die Bad-Zugangstüre ausgebildet.

Wohn- und Essbereich

Links neben der Waschtischanlage erweitert sich das Badezimmer um einen weiteren Raum. Hier wurde die ehemals vorhandene Wand großflächig in voller Raumhöhe geöffnet, um ein Verschmelzen beider Teilbereiche zu erreichen. Lediglich eine Brüstung trennt den Waschtisch von dem groß bemessenen exklusiven Jacuzzi. 2 fackelartige dimmbare Wandleuchten unterstreichen die Atmosphäre, um hier zu entspannen. Während des Bades kann darüber hinaus auch ferngesehen werden. Dem Whirlpool gegenüber befindet sich eine bodengleiche Wellnessdusche, die durch eine rahmenlose Ganzglasschiebetür abgetrennt ist. Eine stylische Ablaufrinne ersetzt hier den sonst üblichen Abfluss.

Ebenso wie das Schlafzimmer, wurden hier neben einer hochmodernen Lüftungsanlage auch Teile der Beleuchtung in den Randbereich der glatt ausgebildeten abgehängten Decke integriert. Ein besonderes Highlight ist aber zweifelsohne die großflächig installierte Licht-Spanndecke! Diese vermittelt einen unglaublichen Tageslichteindruck, was selbst den Bauherren derart überraschte, dass er nun, nach eigener Aussage, jeden Morgen sein Bad mit einem Lächeln auf den Lippen betritt!

Die Exklusivität dieses Bades wird unterstrichen durch die fugenlose Wand- und Bodengestaltung, wie sie auch im Gästebad zum Einsatz gekommen ist. Eine durch eine Spezialfirma aufgebrachte Kalk-Marmor-Spachtelung verbindet nun alle Flächen, inclusive der mit Gefälle ausgebildeten Dusche als auch der Jacuzzifront, zu einer gestalterischen Einheit, ohne als Solche im Vordergrund zu stehen. Damit entspricht das Erscheinungsbild voll und ganz den Vorstellungen des Auftraggebers.

Frau Dipl. Ing. Innenarchitektur Kerstin Bertz bedankt sich mit Ihrem gesamten Team von „raum in form – Innenarchitektur + Architektur“ bei dem Bauherren für das entgegengebrachte Vertrauen und die damit einhergehenden Freiheiten in der Umsetzung des Projektes! Nur so war es möglich, innerhalb von nur 5 Monaten Bauzeit eine Lagerhalle in ein exklusives Loft zu verwandeln. Dank der engen Zusammenarbeit zwischen Auftraggeber und „raum in form-Innenarchitektur & Architektur“ konnten die Wünsche des Bauherren sowohl in funktionaler als auch gestalterischer Weise optimal umgesetzt werden.

Im Namen des gesamten “raum in form” -Teams:

Kerstin Bertz (Dipl.-Ing. Innenarchitektur)

Blättern Sie jetzt in der Projekt-Dokumentation!