Energetische Sanierung und Modernisierung eines Einfamilienhauses im Raum Wachenheim an der Weinstraße…

Anfang Mai dieses Jahres wurde „raum in form – Innenarchitektur & Architektur“ mit der energetischen Sanierung und Modernisierung eines Einfamilienhauses aus den 1970er-Jahren beauftragt- das Gebäude umfasst drei Geschosse und sollte sowohl technisch als auch gestalterisch an heutige Standards angepasst werden. Nach einer umfassenden Bestandsaufnahme und der Erstellung der Aufmaßplanung fand zunächst ein Brainstorming mit dem raum in form- Planungsteam statt, bei dem sowohl sämtliche Wünsche und Vorstellungen der Bauherren berücksichtigt als auch die verschiedenen kreativen und innovativen Ideen des Planungsteams in die zu erstellenden Konzeptplanungen mit aufgenommen wurden.

 

Konzept 1: Im Kellergeschoss war vorgesehen, neben der Bestandssauna auch eine neue Waschküche sowie ein Arbeitszimmer unterzubringen. Der Waschraum sollte ausreichend Stauraum bieten und Platz für Waschmaschine und Trockner schaffen. Das Arbeitszimmer erhielt durch die Planung einen größeren Lichtschacht, sodass der Raum nun mit mehr Tageslicht versorgt wird- direkt davor wurde der Schreibtisch platziert. Darüber hinaus entstand Platz für Stauraum, eine gemütliche Leseecke sowie ein Terrarium.

Im Erdgeschoss greift das Konzept 1 stärker in den Bestand ein- die Wand neben dem Eingangsbereich wurde größtenteils entfernt, um einen offenen Eingangsbereich zu schaffen, der ein großzügiges und lichtdurchflutetes Wohngefühl vermittelt. Auch die Wände rund um die alte Küche wurden herausgenommen, sodass Küche, Essbereich und Wohnzimmer nun zu einem offenen Raumkonzept verschmelzen- so entstanden Blickbeziehungen zwischen allen Bereichen sowie zum Garten.

Die Küche wurde in L-Form geplant- deckenhohe Hochschränke bieten viel Stauraum, die Spüle ist vor dem Fenster angeordnet und eine großzügige Kücheninsel mit Frühstückstheke bildet das Zentrum des Kochbereichs. Ein angrenzender Durchgang mit Stauraummöglichkeiten verbindet Küche und Garage.

Im Essbereich, der zum Garten hin liegt, wurden die Fenster bodentief ausgeführt, sodass viel Tageslicht einströmen kann. Hier ist ein großer Esstisch mit Platz für acht bis zehn Personen vorgesehen. Ess- und Wohnbereich werden durch einen dreiseitig geöffneten Kamin optisch getrennt und zugleich verbunden. Während der Kamin den Durchgang verengt, schafft er durch seine drei Öffnungen von beiden Seiten Blickbeziehungen auf das Feuer. Der Wohnbereich selbst wird durch eine L-förmige Couch gegliedert, der gegenüberliegend der Fernseher angeordnet ist.

Die Treppe im Eingangsbereich wird mit Trockenbau verkleidet, um den Aufgang optisch abzugrenzen. Der Abgang in den Keller erhielt zudem eine Tür, um das Eindringen kalter Luft ins Erdgeschoss zu verhindern. Neben dem Kellertreppenabgang führt ein kleiner Flur zu zwei bestehenden Einbauschränken. Von hier aus gelangt man in ein Gäste-Badezimmer mit bodengleicher Dusche sowie in ein Arbeits- bzw. Gästezimmer, in dem ein Einbauschrank Platz für ein ausklappbares Gästebett bietet.

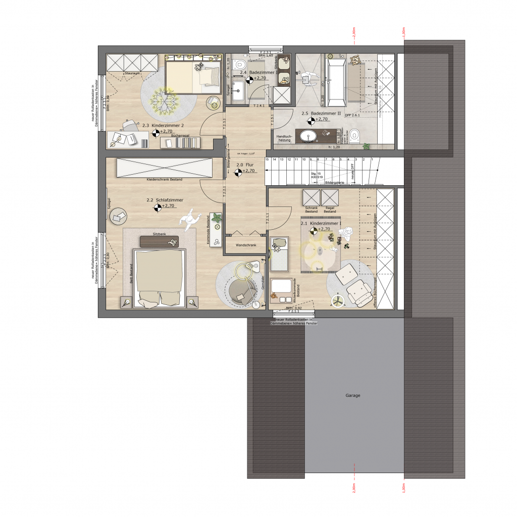
Im Obergeschoss erschließt ein zentraler Flur zwei Kinderzimmer, zwei Badezimmer und das Schlafzimmer. Das Schlafzimmer wurde großzügig angelegt und zusätzlich mit einer Leseecke ausgestattet. Das kleinere Badezimmer ist als Kinderbad vorgesehen und bietet neben WC und Waschtisch auch Stauraum sowie eine Sitzbank. Das größere Familienbad umfasst eine geräumige bodengleiche Dusche, eine Badewanne, einen großen Waschtisch sowie Einbauschränke, die den niedrigen Bereich unter der Dachschräge optimal ausnutzen. Das WC ist hinter einer halbhohen Trockenbauwand platziert und liegt so beim Betreten des Raumes nicht im Blickfeld.

Konzept 2: Das Kellergeschoss in Konzept 2 weist die gleiche Raumaufteilung auf wie in Konzept 1, unterscheidet sich jedoch durch die Möblierung. Der Stauraum in der Waschküche wurde hier in L-Form angeordnet, sodass die gesamte untere Wand als Stellfläche für Hochschränke genutzt werden kann.

Im Erdgeschoss blieb in diesem Konzept die Zwischenwand zwischen Flur und Küche erhalten, wodurch eine klarere Raumtrennung entsteht. Die Treppe wurde offen gestaltet und prägt somit stärker den Eingangsbereich. Die Küche wurde in U-Form geplant- ergänzt durch eine Kücheninsel im Übergang zum Essbereich. Der Essbereich bietet ebenfalls Platz für einen großen Esszimmer-Tisch, der durch eine markante Pendelleuchte hervorgehoben wird. Statt des dreiseitig geöffneten Kamins wie in Konzept 1 wurde hier ein runder Kaminofen vorgesehen. Außerdem blieb eine breitere Wandfläche im Bestand bestehen, wodurch Ess- und Wohnbereich deutlicher voneinander getrennt sind.

Über den kleinen Flur mit den beiden Einbauschränken gelangt man erneut in das Duschbad und in das Arbeitszimmer. Dieses erhielt eine ausziehbare Schlafcouch sowie einen Schreibtisch über die gesamte Fensterwand.

Im Obergeschoss wurde das Schlafzimmer etwas kleiner angelegt, bietet aber weiterhin ausreichend Platz. Der gewonnene Raum wurde einem Kinderzimmer zugeschlagen, das dadurch großzügiger gestaltet werden konnte. Das Kinderbad erhielt in diesem Konzept neben WC und Waschtisch eine bodengleiche Dusche, die durch eine Trockenbauwand abgetrennt wurde. Das große Badezimmer wurde mit einer freistehenden Badewanne, einem Waschtisch sowie einem WC ausgestattet, dass „um die Ecke“ platziert ist und somit beim Betreten nicht sofort ins Blickfeld rückt.

Finalkonzept: Nach der ausführlichen Vorstellung der beiden verschiedenen Konzepte, entschieden sich die Bauherren im Wesentlichen für die Ausgestaltung von Konzept 2, ergänzt wurde das ausgewählte Konzept jedoch durch einzelne Elemente aus Konzept 1- so wurde beispielsweise die Kücheninsel um eine Frühstückstheke ergänzt. Die Hochschränke und die Arbeitsfläche mit Herd wurden gespiegelt, um eine optimale Raumaufteilung zu erzielen. Zudem wurde ein dreiseitig geöffneter Kamin mit integrierter Sitzbank realisiert.

Im Arbeitszimmer entstand eine Kombination aus Einbauschrank mit ausklappbarem Bett und einem Schreibtisch, der sich über die gesamte Fensterwand zieht. Im Obergeschoss wurden die Positionen von Waschbecken, WC und Badewanne im großen Badezimmer getauscht, um die Raumaufteilung noch funktionaler zu gestalten.

Zur besseren Visualisierung wünschten sich die Bauherren Moodboards für die Badezimmergestaltung, da sie sich zunächst zwischen unterschiedlichen Stilrichtungen nicht entscheiden konnten. Vorgestellt wurden zwei Ansätze: Zum einen ein helles Bad mit frischen Farbakzenten, das eine spielerische Atmosphäre schafft, die durch schwarze Armaturen und Möbel in einen „erwachseneren“ Kontrast gesetzt wird. Zum anderen eine ruhige, zurückhaltende Variante in erdigen Tönen mit großformatigen Fliesen, Armaturen aus gebürstetem Edelstahl und Holzelementen, die dem Raum Wärme verleihen.

Aktuell befindet sich das Bauvorhaben bereits in der Bauphase- mit der Ausführung der Arbeiten wurde die raum in form – Bau- und Sanierungsgesellschaft beauftragt, die Bauleitung und Projektsteuerung wird von raum in form- Innenarchitektur & Architektur übernommen.